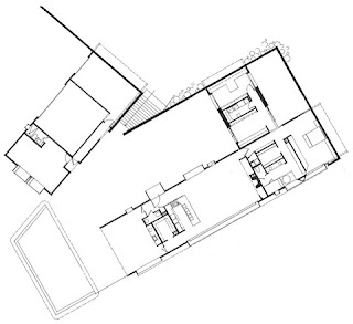
In the desert of Arizona, architect Rick Joy has created a rough weathered steel exterior form that contrasts with the refinement of the soft white, steel and maple wood interior palette. The house, defined by retaining walls burrowed into the hillside, is punctuated with openings that frame articulated views of the landscape.
No house should ever be on a hill [...] It should be of the hill. Belonging to it. Hill and house should live together each the happier for the other

Frank Lloyd Wright

0 comments:

Post a Comment

 
Top